Mieszkanie na sprzedaż Piła, Zielona Dolina

3 pokoje
64.58 m²
10 684,42 zł/m2
3 piętro
MARG-MS-206
Oblicz ratę kredytu

690 000 zł

Mieszkanie na sprzedaż
Nowa oferta

Szczegóły oferty

Symbol oferty MARG-MS-206
Powierzchnia 64,58 m²
Powierzchnia użytkowa [m2] 64,58 m²
Powierzchnia balkonów/tarasów 31,42 m²
Liczba pokoi 3
Rodzaj budynku apartamentowiec
Technologia budowlana tradycyjna
Standard
Opłaty w czynszu administracja, Części wspólne, fundusz remontowy, ogrzewanie, sprzątanie, Winda, woda ciepła, woda/ryczałt na wodę, wywóz nieczystości
Opłaty wg liczników prąd
Piętro 3
Garaż miejsce postojowe
Stan lokalu bardzo dobry
Mies. czynsz admin. 920 PLN
Okna PCV 3 szyby, ciepły montaż
Instalacje ELEKTRYCZNA
Balkon taras
Liczba balkonów 1
Liczba tarasów 1
Rok budowy 2025
Widok na inne budynki
Gaz brak
Woda ciepła - miejska
Dojazd asfalt
Otoczenie las
Ogrzewanie C.O. miejskie
Winda tak
Usytuowanie środkowe
Drzwi antywłamaniowe tak
Przystosowania dla niepełnosprawnych tak
Rolety antywłamaniowe tak
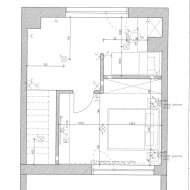
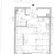
Pomieszczenia
Powierzchnia pokoi 25,04 m2; 12 m2; 12,3  m2
Podłogi pokoi panele podłogowe
Typ kuchni umeblowana i wyposażona
Rodzaj kuchni aneks kuchenny - połączony z salonem
Podłoga kuchni panele podłogowe
Typ łazienki razem z wc
Liczba łazienek 2
Glazura łazienki nowego typu
Podłoga łazienki gres
Wyposażenie łazienki lustro, prysznic, umywalka, wanna, WC
Liczba przedpokoi 1
Powierzchnia przedpokoi 3,42 m2
Podłoga przedpokoi panele podłogowe
Emilia Szubert

Emilia Szubert

Pośrednik w obrocie nieruchomościami

Napisz wiadomość 22 Ofert

Opis nieruchomości

Nowoczesny apartament z antresolą, dwoma balkonami oraz imponującym tarasem.

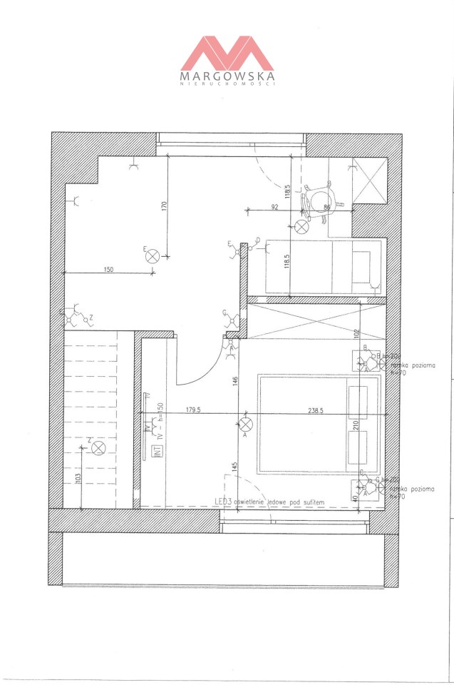
Antresola zagospodarowana na łazienkę z prysznicem, sypialnię oraz pokój dziecięcy.

Prezentujemy Państwu na sprzedaż wyjątkowy, wykończony w wysokim standardzie apartament o pow. użytkowej 64,58 m2 zlokalizowany w Pile na os. Zielona Dolina.


Mieszkanie znajduje się na 3 piętrze w apartamentowcu z windą w Pile przy ul. Konstancji.
Posiada funkcjonalny okład 3 pokoi, idealny zarówno dla rodziny, jak i osób ceniących komfortową przestrzeń.

W cenie miejsce postojowe w hali garażowej.

Najważniejsze atuty nieruchomości:

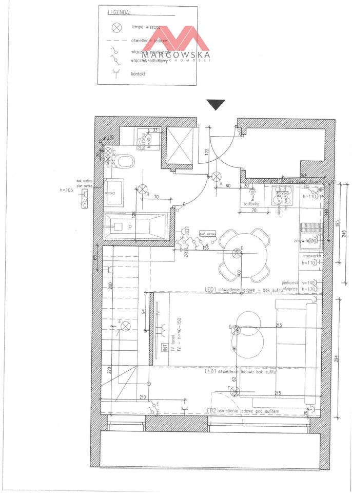
  • Nowoczesny system Smart Home z możliwością sterowania z telefonu gdzie skonfigurowane są: oświetlenie, ogrzewanie, rolety zewnętrzne z opcją ustawień meteorologicznych, AGD (przy dostosowanych opcjach osprzętu); TV Ambilight.
  • Ogrzewanie podłogowe w całym mieszkaniu zapewniające komfort cieplny (również pod prysznicem).
  • Podłogi w pokojach wyłożone panelami z fugą klasy AC6.
  • Drzwi bezprzylgowe z ukrytymi zawiasami.
  • Rolety antywłamaniowe zewnętrzne oraz żaluzje typu plisy wewnątrz.
  • Łazienka na dole: armatura KLUDI podtynkowa oraz akrylowa wanna (163 cmx73 cm), WC Grohe, zabudowana szafa z frontami antyfinger firmy RARO (a w niej dodatkowo podłączenie pod pralkę).
  • Łazienka na górze: armatura KLUDI podtynkowa, WC Grohe, prysznic z ogrzewaniem podłogowym, deszczownica, drzwiczki szklane ze szkła hartowanego wykonywane przez szklarza, odpływ liniowy, lustro z oświetleniem wiszącym.
  • Kuchnia wyposażona wysokiej jakości sprzęt AGD firmy Bosch (płyta indukcyjna, lodówko-zamrażalka szerokości 70cm, piekarnik z funkcją Airfryer, pochłaniacz,  młynek na odpady firmy TEKA), meble na wymiar z frontami antyfinger firmy RARO,  blaty kuchenne z konglomeratu firmy RARO, elegancji rozkładany stół ceramiczny wraz z krzesłami.
  • W przedpokoju szafa typu Komandor z praktyczną dolną wnęką na buty.
  • Pomieszczenie gospodarcze, w którym znajduje się: węzeł cieplny, rozdzielnia prądu, sterowania do smarthome, światłowód, regały.
  • Górna część mieszkania z rozkładem dwustronnym.
  • Możliwość zabudowania dużego tarasu i uzyskania dodatkowego pomieszczenia (zgoda dewelopera w akcie notarialnym oraz uszykowany kosztorys wykonawstwa).
  • Umeblowanie widoczne na zdjęciach a dokładnie w pomieszczeniach na górze: możliwość zakupu i podlegają osobnym rozmowom z właścicielem.
  • Na obu kondygnacjach wyprowadzony przewód elektryczny odpowiedni dla klimatyzacji (3x3,5mm2)
  • Niezawodnie rozprowadzona instalacja internetowa, na dole ruter i hotspot, na górze hotspot.

Mieszkania posiada duży, komfortowy taras o pow. 25,90 m2 oraz dwa balkony każdy z nich o pow. 5,52 m2 (po jednym na każdej kondygnacji).

To idealna propozycja dla osób, które poszukują nowoczesnego, komfortowego i świetnie wyposażonego apartamentu w prestiżowej lokalizacji.

Zapraszamy na prezentację.

Kalkulatory

Kalkulator kredytowy

Wysokość raty

PLN
%

Kalkulator kosztów

Podatek od czynności cywilno-prawnych

Taksa notarialna
(opłata notarialna)

Wniosek o wpis do KW

VAT od prowizji
agencji nieruchomości

VAT od taksy notarialnej
(opłaty notarialnej)

Prowizja agencji nieruchomości

Wypisy aktu notarialnego

Razem

Uwaga: mogą wystąpić dodatkowe opłaty za założenie księgi wieczystej oraz ustanowienie hipoteki.

PLN
PLN
PLN
PLN
PLN
PLN
%
PLN

Podobne oferty

Oferta specjalna

Mieszkanie na sprzedaż

Piła, Zielona Dolina

4 pokoje 73 m2 8 996,73 zł/m2
Oferta specjalna

Mieszkanie na sprzedaż

Piła, Zielona Dolina

3 pokoje 84 m2 7 882,78 zł/m2

Mieszkanie na sprzedaż

Piła, Zielona Dolina

2 pokoje 55 m2 9 461,43 zł/m2

Mieszkanie na sprzedaż

Piła, Zielona Dolina

4 pokoje 71 m2 9 722,62 zł/m2

Pośrednik w obrocie nieruchomościami

Proszę wprowadzić poprawne imię i nazwisko
Proszę wprowadzić poprawny numer telefonu
Proszę wprowadzić poprawny adres e-mail
Proszę zaznaczyć wymagane zgody
Rozwiąż równanie:
21 4
Niepoprawny wynik